• Publicación__12 de febrero de 2022
  • Autor/a__Liliana Carbello para ARQ
Una casa en Nordelta que disuelve los límites entre lo público y lo privado
  • 0
  • 1

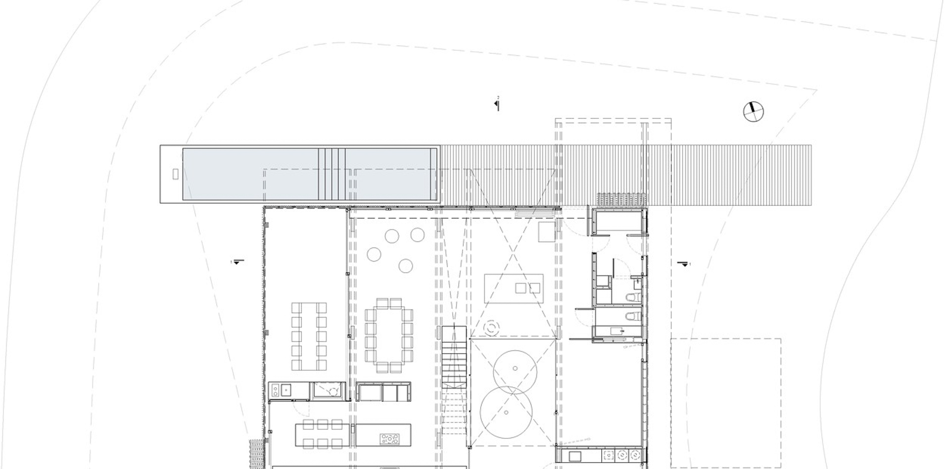
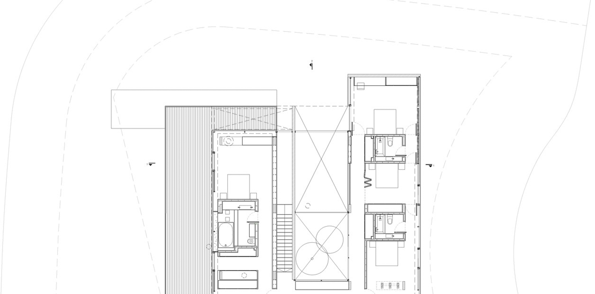
Ubicada en Nordelta, la ciudad pueblo de Tigre, la vivienda aprovecha al máximo el entorno ya que se encuentra bordeada por el agua del lago, hacia donde se abren las visuales. Se trata de la casa Cudich Drago, de 510 m2, diseñada por el estudio ATV Arquitectos, que dirigen los arquitectos Federico Azubel, Ignacio Trabucchi y Walter Viggiano. La obra fue distinguida con la mención honorífica en los premios Architecture MasterPrize, que reconocen la mejor arquitectura a nivel mundial, en la categoría Arquitectura Unifamiliar - Residencial. El núcleo de la casa es un patio, que no solo relaciona los diferentes usos, sino que también se presenta como un espacio articulador entre los paisajes interiores y exteriores. A partir de este vacío, el espacio se redefine como una serie de transiciones entre lo público y lo privado, tratando de disolver los límites.

ATV Arquitectos

Dado que la casa está implantada en un lote de mil m2, ubicado en esquina, el diseño tiene en cuenta las condiciones topográficas y la relación con el entorno, en especial, el agua. La obra intenta abordar la problemática proyectual que representa el pensar la vivienda en el ámbito de un barrio privado. “Algunas de las preguntas que fundamentaron el proceso tienen que ver con la relación interior-exterior. ¿Cómo se debería habitar este paisaje? ¿Qué implicaría redefinir lo doméstico?”, explican los autores del proyecto. “La vivienda plantea como eje un patio que no sólo articula los distintos usos de la vivienda y su habitabilidad, sino que se presenta como un espacio articulador”, describen.

Casa Cudich Drago

Distribución funcional

En la planta baja, se encuentra el sector público conformado por un gran patio que organiza e integra la cocina, el living y el comedor diario con un área semicubierta, patios exteriores y piscina. En el ingreso se ubica un toilette. En la planta baja, además, la pileta flota sobre la barranca y comunica la laguna el espacio semicubierto del quincho y el living. “El estar, en tanto, aparece como un lugar intermedio entre dos exteriores: un “exterior propio” y el que le pertenece al paisaje”, explican los arquitectos. En la planta alta, en tanto, con vistas al patio central se ubican tres dormitorios: una master suite, dos suites y un estar íntimo, que funciona como espacio de trabajo.

Nordelta

En cuanto a la materialidad, en el proyecto sobresale la dupla hormigón-madera, proponiendo al primero como el elemento que define la estructura, que con sus diferencias de texturas y dimensiones, define los límites de los espacios. También potencia la espacialidad de la casa, generando que el ambiente sea totalmente etéreo en cuanto a sus límites, ya que las carpinterías pueden abrirse totalmente conformando un área continua semicubierta. “El límite de Casa Cudich Drago es el horizonte del paisaje que plantea el lugar”, concluyen los autores. Sobre el premio obtenido, el arquitecto Ignacio Trabucchi, socio director del estudio, sostiene que "nos sentimos orgullosos y felices de haber recibido este premio en un certamen internacional tan relevante que reconoce la innovación arquitectónica y el talento a nivel mundial. Es muy gratificante ver como nuestras obras son destacadas y valoradas por su aporte a la arquitectura y su impacto social”. ¡Leé la nota en Clarín ARQ acá!

  • Publicación__12 de febrero de 2022
  • Autor/a__Liliana Carbello para ARQ
prensa
ensayos

Compartir cultura arquitectónica

El Ciclo Diálogos, un espacio de encuentro y reflexión, en palabras de Anabella Gatto, gerente del área Proyectual de ATV Arquitectos.

ver más
novedades

ATV en el libro de Open House BA 10 años

El estudio apoya el lanzamiento de esta publicación, que celebra lo mejor del patrimonio arquitectónico de la ciudad.

ver más
novedades

Liv Guatemala ganó el Architecture MasterPrize

ATV obtuvo un nuevo reconocimiento internacional, en la categoría “Diseño Arquitectónico - Arquitectura Residencial Multiunidad”.

ver más